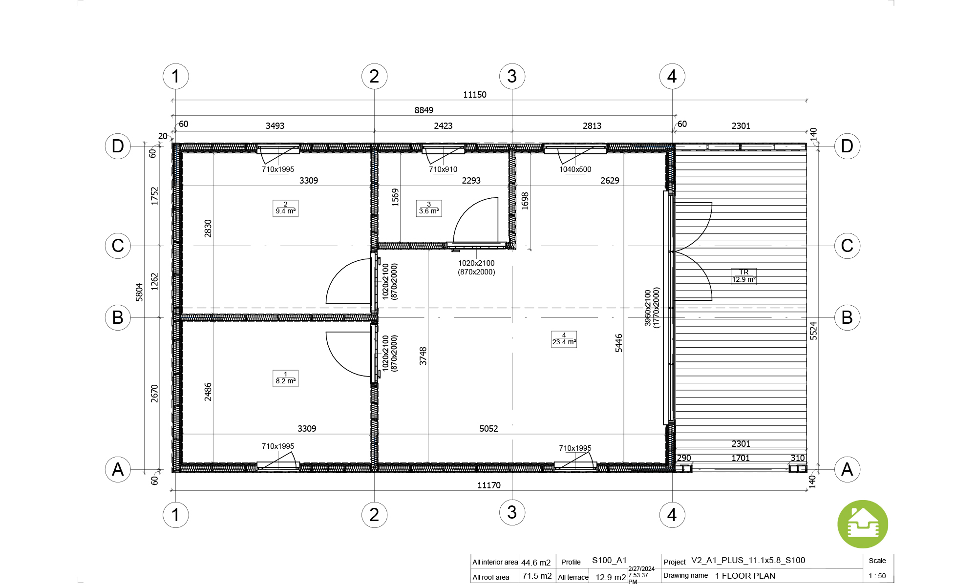
Całoroczny dom modułowy „RYTEL V2_A1” (44 m²) z tarasem 13 m² – Przytulność, wolność i zero budowlanej biurokracji
Marzysz o nowoczesnym, ciepłym i przestronnym domu, ale chcesz uniknąć uciążliwych procedur związanych z pozwoleniem na budowę i długich lat budowy? Parterowy dom modułowy „RYTEL V2_A1”, o powierzchni zabudowy 44 m², którego przytulność powiększa 13-metrowy taras, to idealne rozwiązanie. Projekt ten po mistrzowsku łączy współczesną architekturę, szybką produkcję modułową oraz ułatwienia wynikające z polskiego prawa budowlanego.
Model ten doskonale odpowiada na potrzeby głównych kategorii domów:
1. Domy bez pozwolenia i do 70 m² na zgłoszenie (Domy bez pozwolenia / Domy do 70m2 na zgłoszenie) Dzięki powierzchni zabudowy 44 m², model „RYTEL V2_A1” idealnie mieści się w przewidzianej prawem kategorii wolnostojących, nie więcej niż dwukondygnacyjnych budynków mieszkalnych do 70 m². Zapewnia to nieocenione korzyści dla Twojej budowy:
-
Tylko na zgłoszenie (Na zgłoszenie): Nie musisz uzyskiwać formalnego, długotrwałego i drogiego pozwolenia na budowę. Wystarczy złożyć w urzędzie zgłoszenie z gotowym projektem architektoniczno-budowlanym oraz planem zagospodarowania działki i wziąć odpowiedzialność za zaspokojenie własnych potrzeb mieszkaniowych.
-
Mniej formalności i kosztów: Budując ten dom wyłącznie na własne cele mieszkaniowe, prawo pozwala inwestorowi nie zatrudniać oficjalnego kierownika budowy i nie prowadzić dziennika budowy. Te ułatwienia pozwalają zaoszczędzić mnóstwo czasu i pieniędzy.
2. Idealny wybór dla seniorów (Domy dla seniora) Ten model jest niezwykle ceniony przez osoby starsze, które szukają spokojnego życia bliżej natury, ale nie chcą obarczać się ciężarem utrzymania dużego domu czy stresem związanym z placem budowy.
-
Bezpieczny układ parterowy: Budynek jest parterowy, całkowicie pozbawiony schodów. Zapewnia to maksymalne bezpieczeństwo i wygodne poruszanie się po domu osobom z ograniczeniami ruchowymi.
-
Optymalna przestrzeń z tarasem: Przestrzeń 44 m² jest wystarczająco duża do wygodnego życia, a jednocześnie sprzątanie domu nie wymaga dużego wysiłku fizycznego. Ponadto dom posiada taras o powierzchni 13 m², który stanie się idealnym miejscem na poranną kawę, czytanie książki lub spokojny odpoczynek na świeżym powietrzu.
-
Szybki montaż modułowy bez stresu: Technologia modułowa oznacza, że większość elementów domu produkowana jest w fabryce, a na Twojej działce dom jest czysto i szybko montowany w zaledwie 3–6 tygodni. Seniorzy nie będą musieli miesiącami znosić hałasu, ciężkiego sprzętu i brudu związanego z placem budowy na własnym podwórku.
3. Komfort przez cały rok (standard WT2021) Chociaż proces budowy jest uproszczony, „RYTEL V2_A1” to nie tylko domek letniskowy. To pełnowartościowy, solidny i eksploatowany przez cały rok budynek mieszkalny:
-
Najwyższa efektywność energetyczna: Budynek został zaprojektowany z uwzględnieniem najnowszych, rygorystycznych wymagań technicznych WT2021, zapewniających doskonałą izolację termiczną.
-
Ciepło i ekonomia: Dzięki wysokiej jakości materiałom izolacyjnym (na przykład współczynnik przenikania ciepła ścian zewnętrznych nie przekracza 0,20 W/m²K, a dachu – 0,15 W/m²K) dom skutecznie zatrzymuje ciepło zimą i przyjemny chłód latem, co gwarantuje wyjątkowo niskie koszty ogrzewania.
Wybierając „RYTEL V2_A1”, inwestujesz w spokój, szybkość i pełnowartościowy dom, pozwalający cieszyć się życiem i przestronnym tarasem bez żadnego stresu budowlanej biurokracji!
👉ℹ️ Więcej informacji na temat wymogów budowlanych znajdziesz tutaj.
