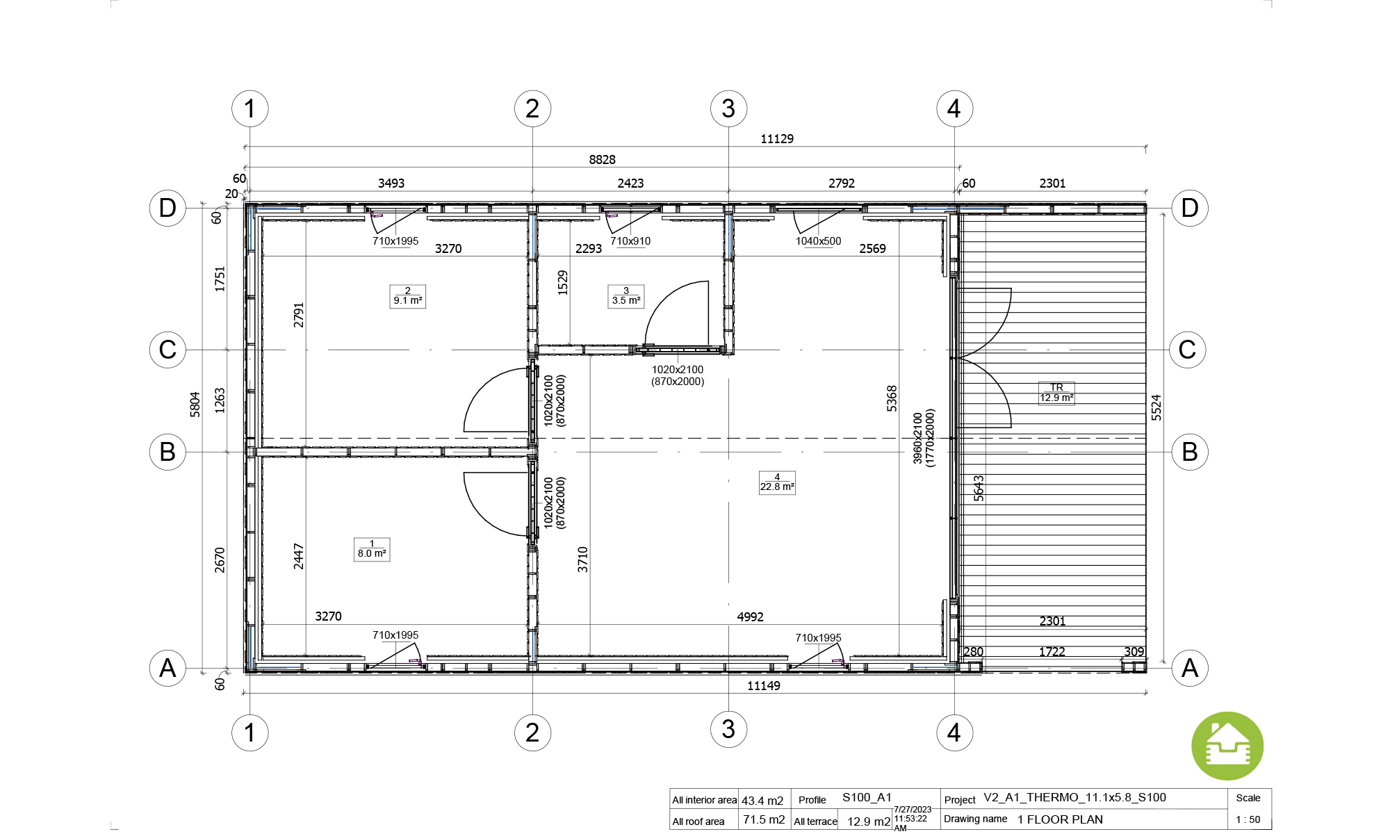
Całoroczny dom modułowy „Jaracz V2_A2” (44 m²) – Przestronniejsze życie bez budowlanej biurokracji
Szukasz przytulnego, nowoczesnego i przestronnego domu, który mógłbyś zbudować, unikając długich i uciążliwych procedur biurokratycznych? Parterowy dom modułowy „Jaracz V2_A2” (44 m² powierzchni zabudowy) to idealne rozwiązanie. Projekt ten łączy współczesną architekturę, szybkie budownictwo modułowe oraz ułatwienia wynikające z polskiego prawa budowlanego.
Poniższy opis został przygotowany tak, aby idealnie odpowiadał na potrzeby najpopularniejszych kategorii domów:
1. Domy bez pozwolenia i do 70 m² na zgłoszenie (Domy bez pozwolenia / Domy do 70m2 na zgłoszenie) Dzięki swojej powierzchni zabudowy wynoszącej 44 m², model ten idealnie mieści się w przewidzianej prawem kategorii wolnostojących budynków mieszkalnych do 70 m². Zapewnia to nieocenione korzyści dla Twojej budowy:
-
Tylko na zgłoszenie (Na zgłoszenie): Nie musisz uzyskiwać formalnego, długotrwałego pozwolenia na budowę. Wystarczy złożyć w urzędzie zgłoszenie z gotowym projektem architektoniczno-budowlanym oraz planem zagospodarowania działki.
-
Mniej formalności i kosztów: Budując ten dom wyłącznie na własne cele mieszkaniowe, prawo pozwala inwestorowi wziąć całą odpowiedzialność na siebie. Oznacza to, że nie musisz zatrudniać oficjalnego kierownika budowy i prowadzić dziennika budowy. Te ułatwienia pozwalają zaoszczędzić mnóstwo czasu i pieniędzy.
2. Komfort przez cały rok (standard WT2021) Chociaż proces budowy jest uproszczony, „Jaracz V2_A2” to nie tylko domek letniskowy. To pełnowartościowy, solidny i eksploatowany przez cały rok budynek mieszkalny:
-
Najwyższa efektywność energetyczna: Budynek został zaprojektowany z uwzględnieniem rygorystycznych wymagań technicznych WT2021, zapewniających doskonałą izolację termiczną.
-
Ciepło i ekonomia: Dzięki wysokiej jakości materiałom izolacyjnym dom skutecznie zatrzymuje ciepło zimą i przyjemny chłód latem, co gwarantuje wyjątkowo niskie koszty ogrzewania i spełnienie wymogów dotyczących zapotrzebowania na energię pierwotną (EP).
3. Idealny wybór dla seniorów (Domy dla seniora) Ten model jest niezwykle ceniony przez osoby starsze, szukające spokojnego życia bliżej natury bez ciężaru utrzymania dużego domu.
-
Bezpieczny układ parterowy: Budynek jest jednopoziomowy (parterowy), całkowicie pozbawiony schodów, dzięki czemu poruszanie się po domu jest maksymalnie bezpieczne i wygodne dla osób z ograniczeniami ruchowymi.
-
Łatwe utrzymanie: Przestrzeń 44 m² jest optymalna – mieści wszystkie pokoje niezbędne do wygodnego życia, jednak sprzątanie i czyszczenie domu nie wymaga dużego wysiłku fizycznego, a rachunki za media pozostają minimalne.
-
Szybki montaż modułowy bez stresu: Technologia modułowa oznacza, że większość elementów domu jest produkowana w fabryce, a na Twojej działce dom jest czysto montowany w zaledwie 3–6 tygodni. Seniorzy nie będą musieli miesiącami znosić hałasu, brudu i stresu związanego z placem budowy na własnym podwórku.
Wybierając „Jaracz V2_A2”, inwestujesz w spokój, szybkość i pełnowartościowy dom, pozwalający cieszyć się życiem bez budowlanej biurokracji!
👉ℹ️ Więcej informacji na temat wymogów budowlanych znajdziesz tutaj.
