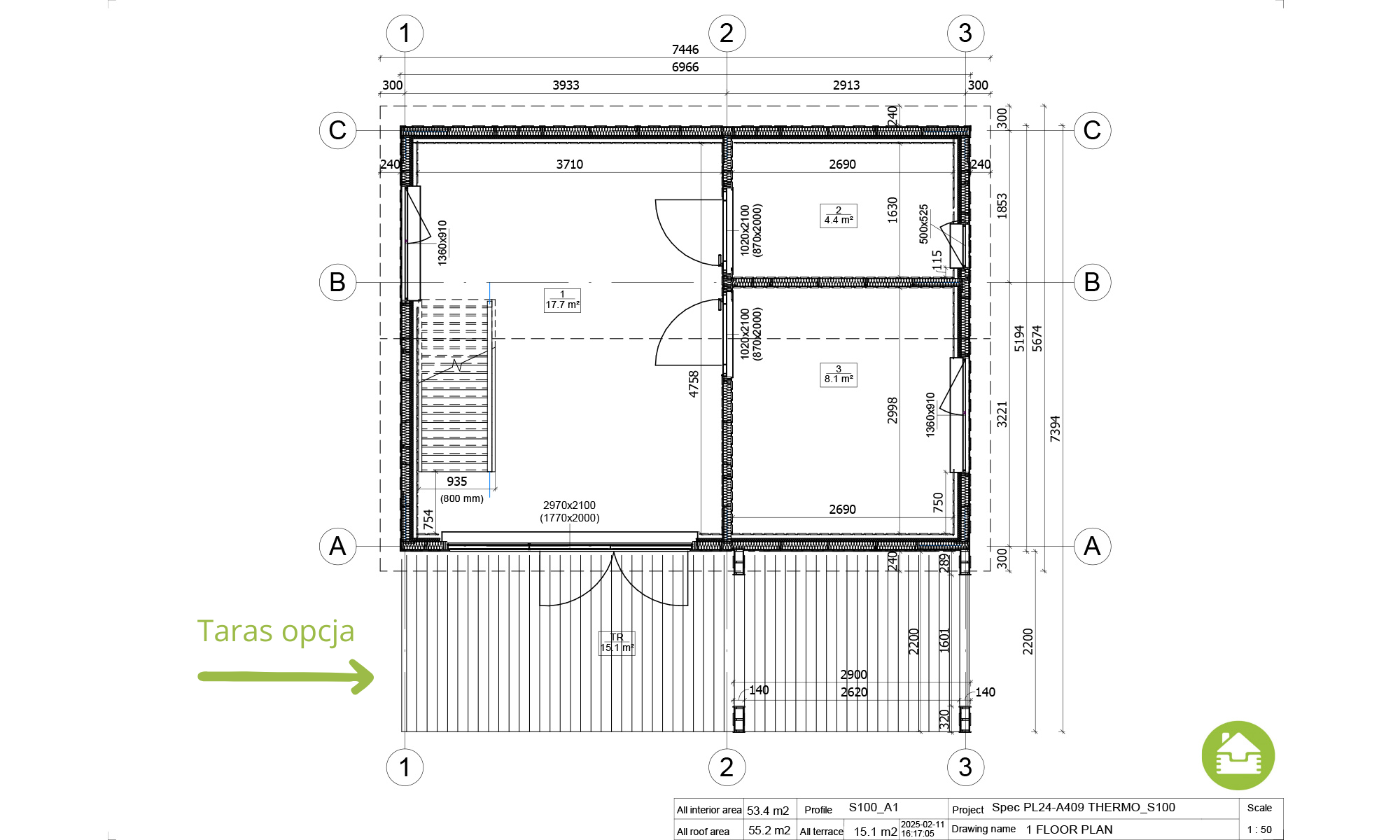
Całoroczny dom modułowy „Sztum V8_A2” (54 m²) – Przestronny komfort i szybka budowa bez pozwoleń
Marzysz o przestronnym, nowoczesnym i ciepłym własnym domu, ale odstraszają Cię długie procedury związane z pozwoleniem na budowę i męczący proces załatwiania formalności? Parterowy dom modułowy „Sztum V8_A2” (54 m² powierzchni zabudowy) to idealne rozwiązanie, pozwalające szybko i bez stresu stworzyć wymarzone lokum. Projekt ten po mistrzowsku łączy nowoczesną architekturę, szybką produkcję modułową i ułatwienia wynikające z polskiego prawa budowlanego.
Ten model doskonale odpowiada na potrzeby najpopularniejszych kategorii domów:
1. Domy bez pozwolenia i do 70 m² na zgłoszenie (Domy bez pozwolenia / Domy do 70m2 na zgłoszenie) Dzięki powierzchni zabudowy 54 m², model „Sztum V8_A2” idealnie mieści się w przewidzianej prawem kategorii wolnostojących budynków mieszkalnych do 70 m². Zapewnia to nieocenione korzyści dla Twojej budowy:
-
Tylko na zgłoszenie (Na zgłoszenie): Nie musisz uzyskiwać formalnego, długotrwałego i drogiego pozwolenia na budowę. Wystarczy złożyć w urzędzie zgłoszenie z gotowym projektem architektoniczno-budowlanym oraz planem zagospodarowania działki i wziąć odpowiedzialność za zaspokojenie własnych potrzeb mieszkaniowych.
-
Mniej formalności i kosztów: Budując ten dom wyłącznie na własne cele mieszkaniowe, zaktualizowane przepisy pozwalają inwestorowi nie zatrudniać oficjalnego kierownika budowy i nie prowadzić dziennika budowy. Te biurokratyczne ułatwienia pozwalają zaoszczędzić mnóstwo cennego czasu i pieniędzy.
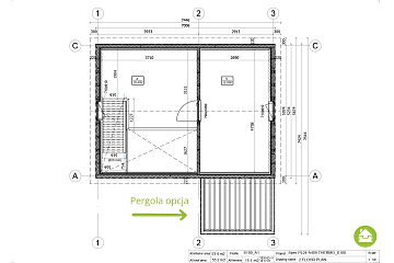
2. Złoty środek: 54 m² przestrzeni i funkcjonalności Powierzchnia 54 m² to idealny balans pomiędzy komfortem dużego domu a prostotą budowy małego domku. W przeciwieństwie do bardzo małych domków letniskowych 35 m², w tym domu doskonale zmieszczą się wszystkie pokoje niezbędne do przytulnego życia rodzinnego (przestronny salon, sypialnie, wygodna łazienka), a jednocześnie budynek nadal nie przekracza granicy 70 m², dzięki czemu możesz w pełni skorzystać z ułatwień prawnych.
3. Komfort przez cały rok (rygorystyczny standard WT2021) W odróżnieniu od tymczasowych budynków rekreacyjnych, „Sztum V8_A2” to pełnowartościowy, solidny i eksploatowany przez cały rok budynek mieszkalny:
-
Najwyższa efektywność energetyczna: Ponieważ jest to budynek o przeznaczeniu mieszkalnym, spełnia najnowsze, rygorystyczne wymagania techniczne WT2021, dotyczące izolacji termicznej budynków i zużycia energii pierwotnej (EP).
-
Ciepło i ekonomia: Dzięki zastosowaniu najwyższej jakości materiałów izolacyjnych (współczynnik przenikania ciepła ścian zewnętrznych nie przekracza 0,20 W/m²K, a dachu – 0,15 W/m²K), dom skutecznie zatrzymuje ciepło zimą i przyjemny chłód latem, co gwarantuje wyjątkowo niskie koszty ogrzewania.
4. Szybkość budownictwa modułowego – koniec z niekończącymi się budowami Technologia modułowa oznacza, że większość elementów domu produkowana jest w fabryce, a na Twojej działce jest on czysto i szybko montowany w zaledwie 3–6 tygodni. Nie będziesz musiał latami znosić hałasu placu budowy, zgiełku robotników czy rozkopanego ogrodu na własnym podwórku.
Wybierając „Sztum V8_A2”, inwestujesz w przestrzeń, komfort i pełnowartościowy, ciepły dom, pozwalający cieszyć się życiem bez żadnego stresu budowlanej biurokracji!
Prosty proces realizacji
- Wybierz swój idealny projekt
Spersonalizuj układ i wykończenia tak, by odzwierciedlały Twoje potrzeby i styl życia.
- Budowa w zaledwie kilka tygodni
Profesjonalny montaż domu pozwala Ci uniknąć stresu związanego z długim procesem budowy.
- Wprowadź się i ciesz się swoim nowym domem
Zamieszkaj w przestrzeni, która łączy elegancję i funkcjonalność z niezrównanym komfortem.
Skontaktuj się z nami!
Masz pytania? Nasz zespół chętnie na nie odpowie i pomoże Ci zrobić pierwszy krok w kierunku własnego modułowego domu.
🎯 Twój wymarzony dom jest na wyciągnięcie ręki!
Kliknij poniżej, by rozpocząć proces zamówienia już teraz.
👉ℹ️ Więcej informacji na temat wymogów budowlanych znajdziesz tutaj.
