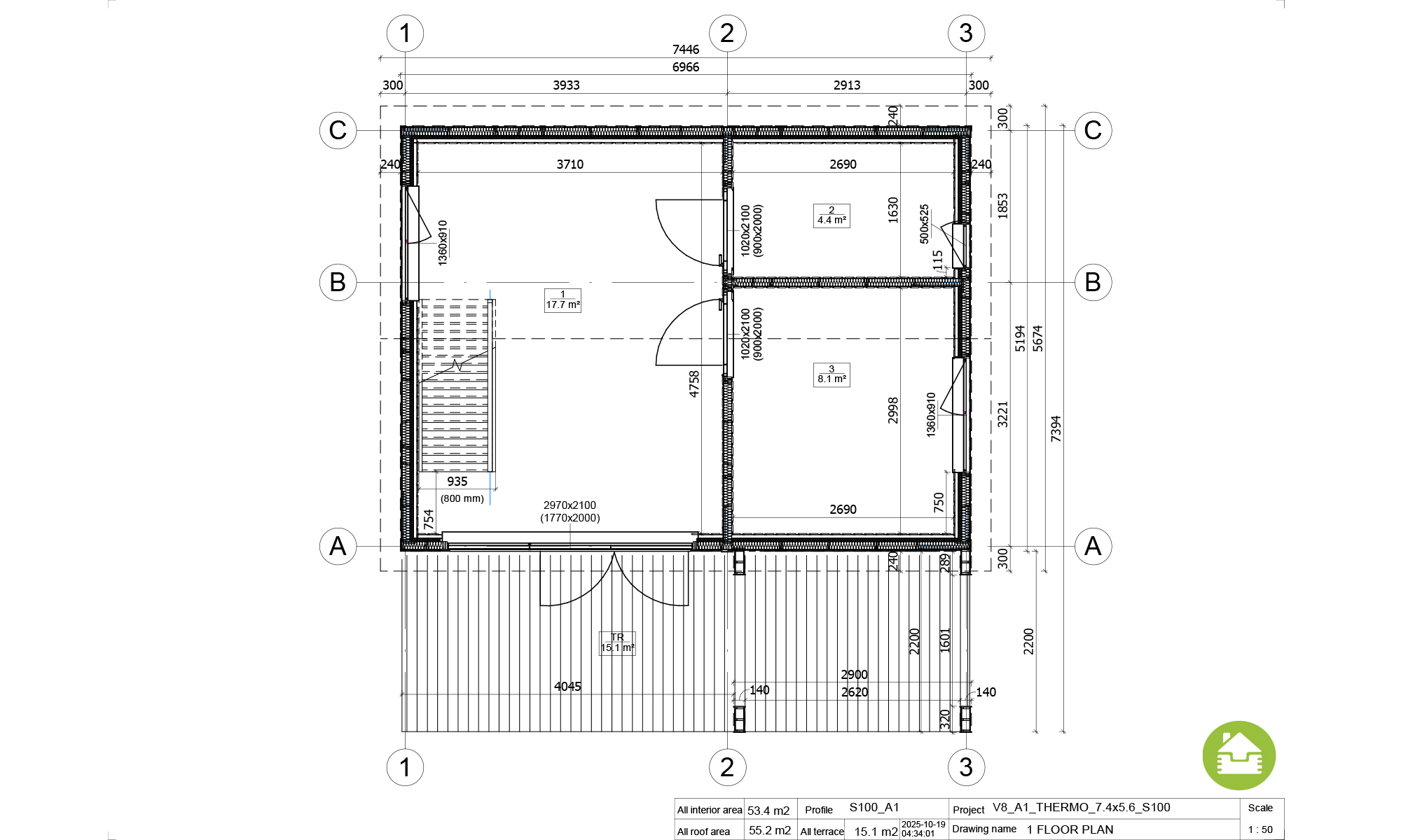
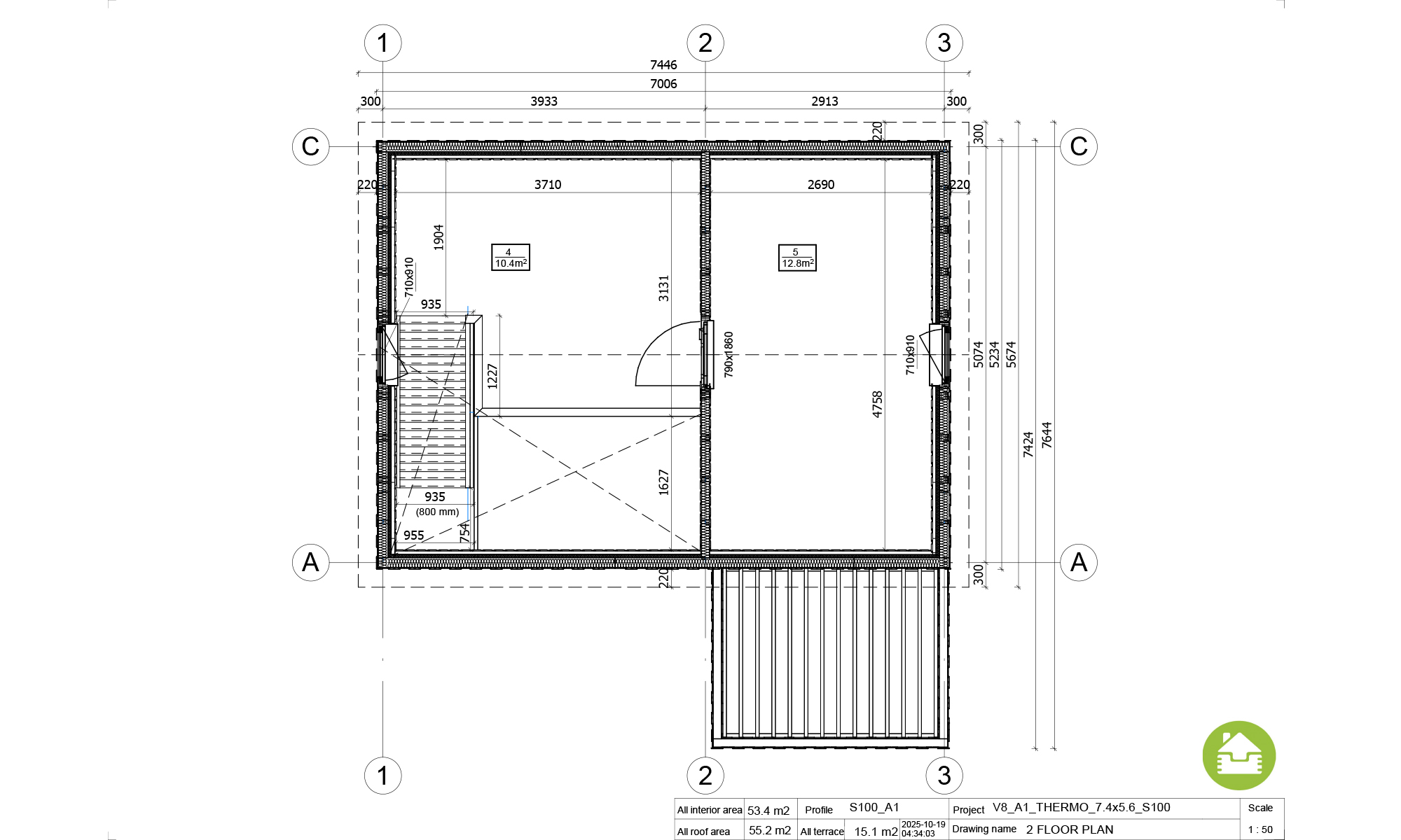
Całoroczny dom modułowy „Sawin V8_A1” (54 m²) – Przestronna wolność bez pozwolenia na budowę i biurokracji
Marzysz o przestronnym, nowoczesnym i ciepłym własnym domu, ale odstraszają Cię długie procedury związane z pozwoleniem na budowę i męczący proces załatwiania formalności? Parterowy dom modułowy „Sawin V8_A1” (54 m² powierzchni zabudowy) to idealne rozwiązanie, pozwalające szybko i bez stresu stworzyć wymarzone lokum. Ten projekt po mistrzowsku łączy nowoczesną architekturę, szybką produkcję modułową i ułatwienia wynikające z polskiego prawa budowlanego.
Ten model doskonale odpowiada na potrzeby najpopularniejszych kategorii domów:
1. Domy bez pozwolenia i do 70 m² na zgłoszenie (Domy bez pozwolenia / Domy do 70m2 na zgłoszenie) Dzięki powierzchni zabudowy 54 m², model „Sawin V8_A1” idealnie mieści się w przewidzianej prawem kategorii wolnostojących budynków mieszkalnych do 70 m². Zapewnia to nieocenione korzyści dla Twojej budowy:
-
Tylko na zgłoszenie (Na zgłoszenie): Nie musisz uzyskiwać formalnego, długotrwałego i drogiego pozwolenia na budowę. Wystarczy złożyć w urzędzie zgłoszenie z gotowym projektem architektoniczno-budowlanym oraz planem zagospodarowania działki i wziąć odpowiedzialność za zaspokojenie własnych potrzeb mieszkaniowych.
-
Mniej formalności i kosztów: Budując ten dom wyłącznie na własne cele mieszkaniowe, zaktualizowane przepisy pozwalają inwestorowi nie zatrudniać oficjalnego kierownika budowy i nie prowadzić dziennika budowy. Te biurokratyczne ułatwienia pozwalają zaoszczędzić mnóstwo cennego czasu i pieniędzy.
2. Złoty środek: przestrzeń i komfort Powierzchnia 54 m² to znacznie więcej swobody i wygody niż w bardzo małych domkach letniskowych 35 m². W tym domu doskonale zmieszczą się wszystkie pokoje niezbędne do przytulnego życia rodzinnego, a jednocześnie budynek nadal nie przekracza granicy 70 m², dzięki czemu możesz w pełni skorzystać z ułatwień prawnych. To idealny balans pomiędzy komfortem dużego domu a prostotą budowy małego domku.
3. Komfort przez cały rok (rygorystyczny standard WT2021) W przeciwieństwie do tymczasowych budynków rekreacyjnych, „Sawin V8_A1” to pełnowartościowy, solidny i eksploatowany przez cały rok budynek mieszkalny:
-
Najwyższa efektywność energetyczna: Ponieważ jest to budynek o przeznaczeniu mieszkalnym, spełnia najnowsze, rygorystyczne wymagania techniczne WT2021, dotyczące izolacji termicznej budynków i zużycia energii.
-
Ciepło i ekonomia: Dzięki wysokiej jakości materiałom izolacyjnym dom skutecznie zatrzymuje ciepło zimą i przyjemny chłód latem, co gwarantuje wyjątkowo niskie koszty ogrzewania i spełnia nowoczesne standardy efektywności energetycznej.
4. Szybkość budownictwa modułowego – koniec z niekończącymi się budowami Technologia modułowa oznacza, że większość elementów domu produkowana jest w fabryce, a na Twojej działce jest on czysto i szybko montowany w zaledwie 3–6 tygodni. Nie będziesz musiał latami znosić hałasu placu budowy, zgiełku robotników czy rozkopanego ogrodu na własnym podwórku.
Wybierając „Sawin V8_A1”, inwestujesz w przestrzeń, komfort i pełnowartościowy, ciepły dom, pozwalający cieszyć się życiem bez żadnego stresu budowlanej biurokracji!
Jak to działa?
1. Wybierz rozwiązanie dopasowane do swoich potrzeb
Szczegółowe warianty wykończenia gwarantują perfekcyjne dopasowanie.
2. Twój dom zamontowany w kilka tygodni
Budujemy Twój wymarzony dom z wykończeniem wnętrz według Twojego wyboru w czasie krótszym niż miesiąc.
3. Zamieszkaj i ciesz się nową jakością życia
Styl, ciepło i wygoda w idealnej harmonii.
Najczęściej zadawane pytania
- Czy dom można użytkować cały rok?
Tak, SAWIN V8_A1 jest wyposażony w izolację termiczną najwyższej jakości, dzięki czemu jest odpowiedni zarówno na lato, jak i surową zimę.
- Jak długo trwa budowa?
Dom jest gotowy w zaledwie 3–6 tygodnie od momentu rozpoczęcia prac montażowych, które wykonują nasi profesjonalni montażyści.
- Czy mogę dostosować projekt?
Oczywiście! Oferujemy szeroki zakres personalizacji, w tym wybór materiałów, okien i wykończeń.
- Jakie są koszty?
Koszt zależy od wybranego wariantu oraz dodatkowych opcji. Skontaktuj się z nami, aby uzyskać szczegółową ofertę.
👉ℹ️ Więcej informacji na temat wymogów budowlanych znajdziesz tutaj.
