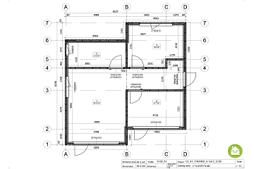
Całoroczny dom modułowy „Banino V3_A1” (49 m²) – Optymalna przestrzeń, komfort i zero budowlanej biurokracji
Marzysz o własnym, przestronnym i nowoczesnym domu, ale chcesz uniknąć uciążliwych procedur związanych z pozwoleniem na budowę i długich lat budowy? Parterowy dom modułowy „Banino V3_A1” (49 m² powierzchni zabudowy) to idealne rozwiązanie, łączące współczesną architekturę, szybką produkcję modułową oraz ułatwienia wynikające z polskiego prawa budowlanego. Ten projekt jest starannie zaplanowany tak, aby odpowiadał na potrzeby głównych kategorii domów:
1. Domy bez pozwolenia i do 70 m² na zgłoszenie (Domy bez pozwolenia / Domy do 70m2 na zgłoszenie) Dzięki powierzchni zabudowy 49 m², model „Banino V3_A1” idealnie mieści się w przewidzianej prawem kategorii wolnostojących, nie więcej niż dwukondygnacyjnych budynków mieszkalnych do 70 m². Zapewnia to nieocenione korzyści dla Twojej budowy:
-
Tylko na zgłoszenie (Na zgłoszenie): Nie musisz uzyskiwać formalnego, długotrwałego i drogiego pozwolenia na budowę. Wystarczy złożyć w urzędzie zgłoszenie z gotowym projektem architektoniczno-budowlanym oraz planem zagospodarowania działki i wziąć odpowiedzialność za zaspokojenie własnych potrzeb mieszkaniowych.
-
Mniej formalności i kosztów: Budując ten dom wyłącznie na własne cele mieszkaniowe, prawo pozwala inwestorowi nie zatrudniać oficjalnego kierownika budowy i nie prowadzić dziennika budowy. Te ułatwienia pozwalają zaoszczędzić mnóstwo czasu i pieniędzy.
2. Idealny wybór dla seniorów (Domy dla seniora) Ten model jest niezwykle ceniony przez osoby starsze, które szukają spokojnego życia bliżej natury, ale nie chcą obarczać się ciężarem utrzymania dużego domu czy stresem związanym z placem budowy.
-
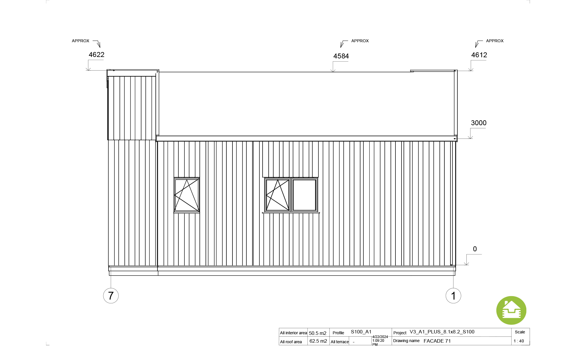
Bezpieczny układ parterowy: Budynek jest jednopoziomowy (parterowy), całkowicie pozbawiony schodów. Zapewnia to maksymalne bezpieczeństwo i wygodne poruszanie się po domu osobom z ograniczeniami ruchowymi.
-
Optymalna przestrzeń: Przestrzeń 49 m² jest wystarczająco duża do wygodnego i pełnowartościowego życia (mieści przestronny salon, sypialnię, kuchnię i łazienkę), a jednocześnie sprzątanie i utrzymanie domu nie wymaga dużego wysiłku fizycznego.
-
Szybki montaż modułowy bez stresu: Technologia modułowa oznacza, że dom jest produkowany w fabryce, a na Twojej działce jest on czysto i szybko montowany w zaledwie 3–6 tygodni, najczęściej bez konieczności użycia ciężkiego sprzętu. Seniorzy nie będą musieli miesiącami znosić hałasu i brudu związanego z budową na własnym podwórku.
3. Komfort przez cały rok (standard WT2021) W przeciwieństwie do tymczasowych domków letniskowych, „Banino V3_A1” to pełnowartościowy, solidny i eksploatowany przez cały rok budynek mieszkalny:
-
Najwyższa efektywność energetyczna: Ponieważ jest to budynek o przeznaczeniu mieszkalnym, musi spełniać i spełnia najnowsze, rygorystyczne wymagania techniczne WT2021, dotyczące izolacji termicznej i zużycia energii.
-
Ciepło i ekonomia: Dzięki wysokiej jakości materiałom izolacyjnym (współczynnik przenikania ciepła ścian zewnętrznych nie przekracza 0,20 W/m²K, a dachu – 0,15 W/m²K) dom skutecznie zatrzymuje ciepło zimą i przyjemny chłód latem, co gwarantuje wyjątkowo niskie koszty ogrzewania.
Wybierając „Banino V3_A1”, inwestujesz w spokój, przestrzeń i pełnowartościowy, ciepły dom, pozwalający cieszyć się życiem bez żadnego stresu budowlanej biurokracji!
👉ℹ️ Więcej informacji na temat wymogów budowlanych znajdziesz tutaj.
