Całoroczny dom modułowy „Retno V1_A1” (30 m²) – Kompaktowa wolność, ciepło i zero budowlanej biurokracji
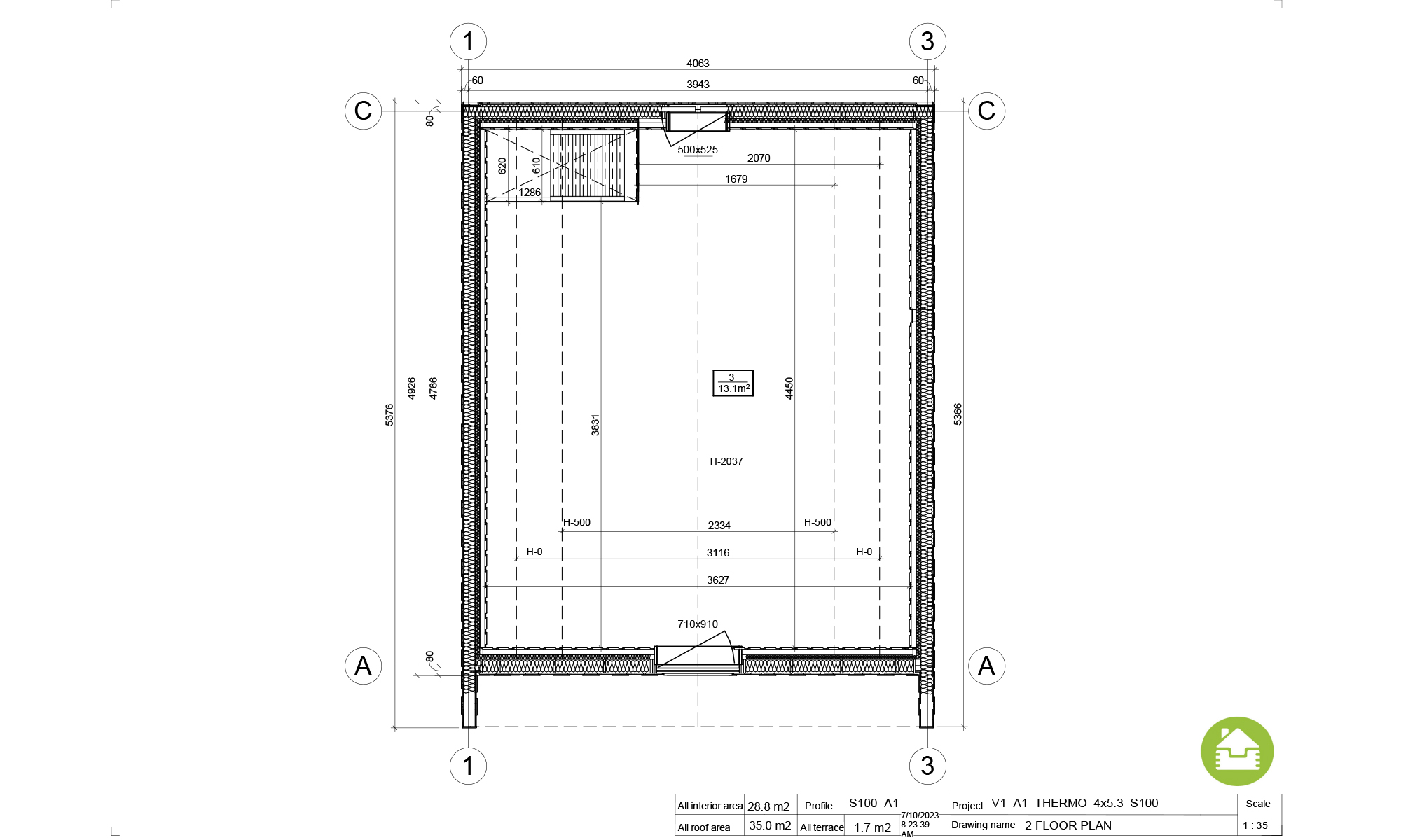
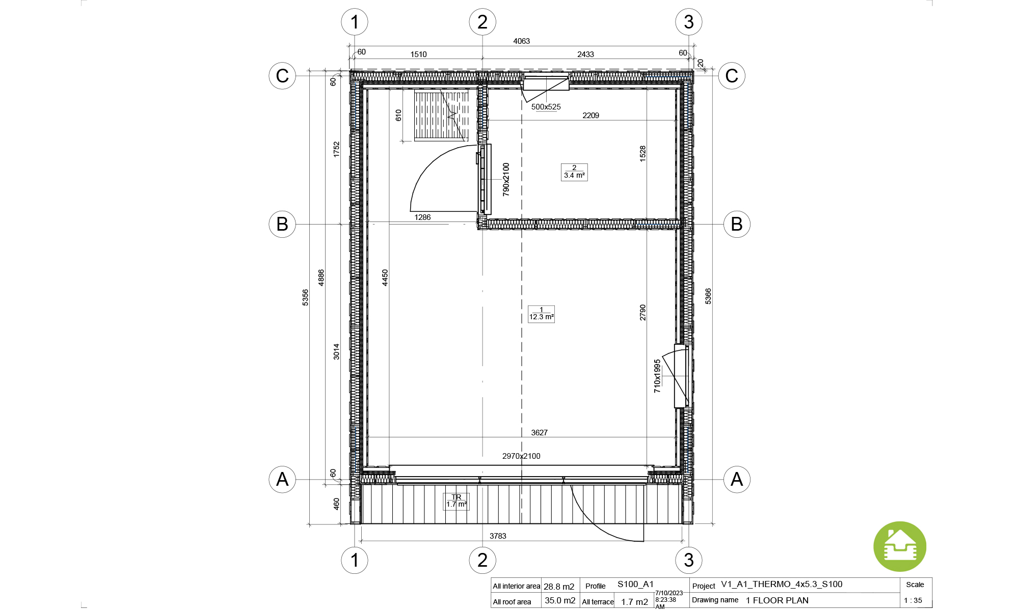
Marzysz o przytulnym, nowoczesnym i przede wszystkim ciepłym własnym lokum, które mógłbyś postawić szybko i unikając uciążliwych procedur biurokratycznych? Parterowy dom modułowy „Retno V1_A1” o powierzchni zabudowy wynoszącej równe 30 m² to idealne rozwiązanie. Ten sprytnie zaprojektowany budynek łączy innowacyjną technologię modułową z ułatwieniami wynikającymi z polskiego prawa budowlanego.
Ten model został po mistrzowsku dostosowany tak, aby spełniać wymagania najpopularniejszych kategorii domów:
1. Idealny przedstawiciel w kategorii całorocznych domków 35 m² (Domek 35m2 całoroczny) Posiadając 30 m² powierzchni zabudowy, „Retno V1_A1” idealnie mieści się w niezwykle popularnej kategorii budynków do 35 m². Nie pozwól jednak, aby kompaktowy rozmiar Cię zwiódł – to nie jest słabo zaizolowana letnia szopa. To pełnowartościowy, solidny i eksploatowany przez cały rok budynek:
-
Rygorystyczny standard WT2021: Jako budynek użytkowany przez cały rok, spełnia najsurowsze wymagania dotyczące efektywności energetycznej (WT2021).
-
Ciepło zimą, orzeźwienie latem: Dzięki zastosowaniu najwyższej jakości materiałów izolacyjnych (spełniających współczynniki przenikania ciepła U – dla ścian zewnętrznych nie więcej niż 0,20 W/m²K, dla dachu – 0,15 W/m²K), dom skutecznie zatrzymuje ciepło podczas najbardziej surowej zimy i nie przegrzewa się latem. Koszty ogrzewania pozostają minimalne.
2. Domy bez pozwolenia i do 70 m² na zgłoszenie (Domy bez pozwolenia / Domy do 70m2 na zgłoszenie) Dzięki powierzchni 30 m², model „Retno V1_A1” z dużym zapasem mieści się w przewidzianej prawem kategorii wolnostojących budynków mieszkalnych lub rekreacyjnych do 70 m². Zapewnia to nieocenione korzyści dla Twojej budowy:
-
Szybka procedura na zgłoszenie: Nie musisz uzyskiwać formalnego, długotrwałego i drogiego pozwolenia na budowę. Wystarczy złożyć w odpowiednich urzędach zgłoszenie z wymaganymi dokumentami. Jeśli budujesz obiekt rekreacyjny do 35 m², procedura jest jeszcze prostsza – często wystarczą tylko szkice i mapa.
-
Zaoszczędzone pieniądze i czas: Budując taki dom na własne cele mieszkaniowe, prawo pozwala inwestorowi wziąć odpowiedzialność na siebie. Możesz w pełni legalnie nie zatrudniać oficjalnego kierownika budowy i nie prowadzić dziennika budowy. Te biurokratyczne ułatwienia pozwalają uniknąć niepotrzebnego stresu oraz dodatkowych kosztów.
-
Wymagania dotyczące działki: Jeśli rejestrujesz dom jako rekreacyjny do 35 m², obowiązuje zasada pozwalająca na budowę jednego takiego budynku na każde 500 m² powierzchni działki.
3. Szybkość budownictwa modułowego – Twój dom bez budowlanego chaosu Zapomnij o trwających miesiącami budowach, błocie i zgiełku robotników na Twoim podwórku. Wybierając „Retno V1_A1”, większość elementów domu jest produkowana i starannie przygotowywana w nowoczesnej fabryce. Na Twojej działce dom jest czysto i szybko montowany w zaledwie kilka tygodni.
Wybierając „Retno V1_A1”, inwestujesz w najwyższej klasy komfort, sprytne wykorzystanie przestrzeni oraz możliwość cieszenia się pełnowartościowym życiem na łonie natury bez żadnego stresu związanego z budowlaną biurokracją!
👉ℹ️ WIĘCEJ INFORMACJI NA TEMAT WYMOGÓW BUDOWLANYCH ZNAJDZIESZ TUTAJ
