Model Beka V4_A2 – Szybkie i Nowoczesne Rozwiązanie dla Współczesnego Życia
Szukasz domu, który zostanie zbudowany szybko, spełni najwyższe standardy jakości i zapewni maksymalny komfort? Model Beka V4_A2 to idealny wybór! Ten modułowy dom szkieletowy został zaprojektowany z myślą o nowoczesnym stylu życia i może być w pełni wykończony w ciągu zaledwie 3–4 tygodni.
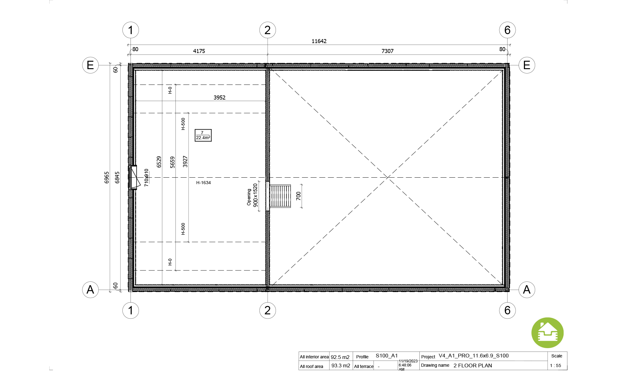
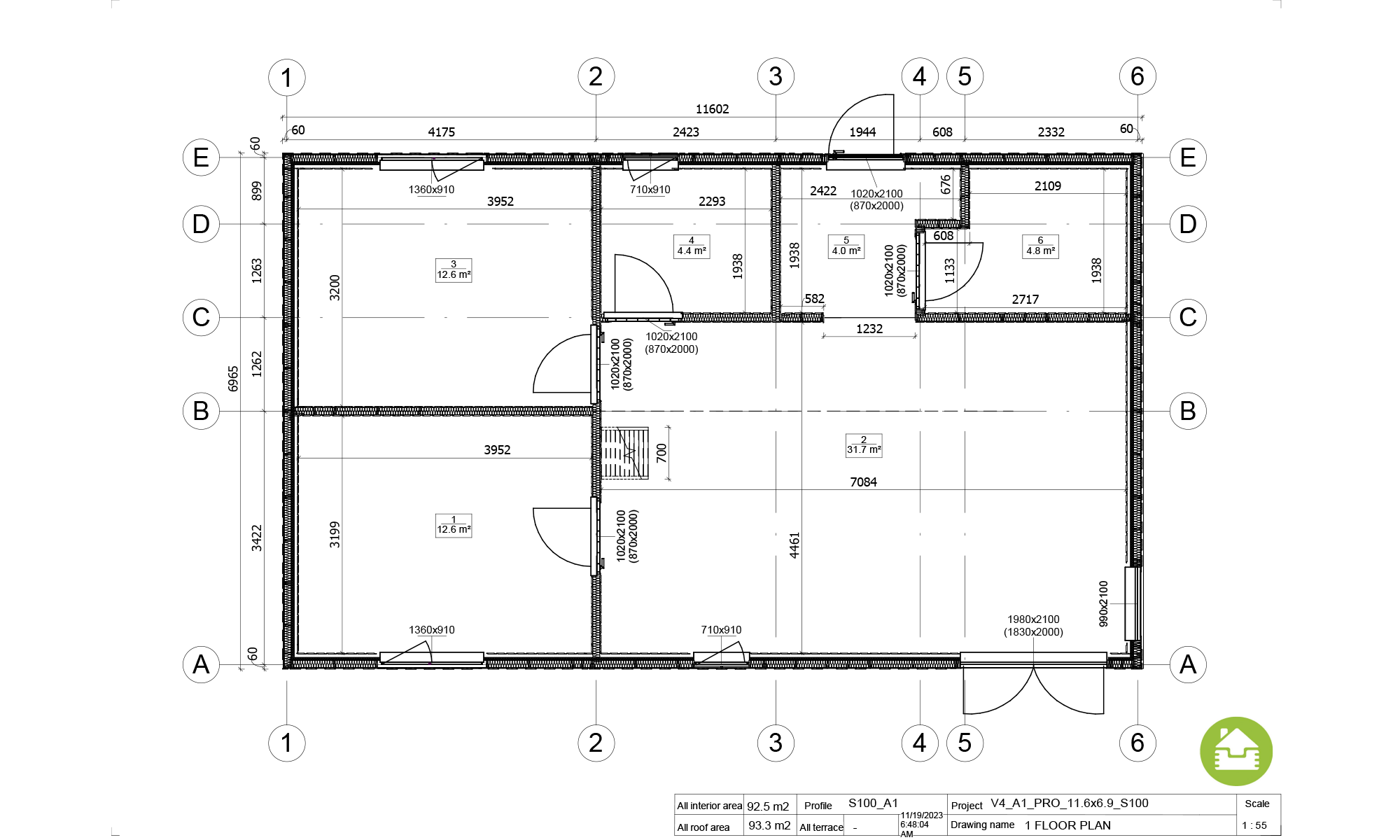
Dzięki przemyślanemu projektowi i optymalnie zagospodarowanej przestrzeni 92,5 m², dom zapewnia idealne warunki do komfortowego życia:
- Przestronny salon z kuchnią – doskonałe miejsce na rodzinne spotkania,
- 2 wygodne sypialnie, które zapewniają każdemu mieszkańcowi własną strefę relaksu,
- Nowoczesna antresola, oferująca dodatkową przestrzeń na kreatywne pomysły lub odpoczynek,
- Łazienka, zaprojektowana praktycznie i z elegancją.
Dodatkowo możesz wybrać jeden z dwóch wariantów ocieplenia, dopasowanych do Twoich potrzeb:
- PREMIUM PLUS – obejmuje drewniane okna dwuszybowe, wysokiej jakości izolację oraz elegancką bitumiczną elewację,
- PREMIUM PRO – zgodne z normami WT 2021, z oknami PVC trzyszybowymi i najwydajniejszymi rozwiązaniami energooszczędnymi.
Nasza profesjonalna ekipa montażowa gwarantuje szybki i precyzyjny montaż, a wykończenie wnętrz możesz dostosować do własnych preferencji – do wyboru naturalne drewniane panele lub płyty gipsowo-kartonowe.
Beka V4_A2 to coś więcej niż dom. To rozwiązanie, które pozwala żyć nowocześnie, wygodnie i bez zbędnych trosk. Stwórz swoją wymarzoną przestrzeń już dziś i zamieszkaj w niej w zaledwie kilka tygodni!
Więcej modeli znajdziesz w kategorii Domki letniskowe modułowe - panelowe.
