Model Jantar V4_A1 – Funkcjonalność, Komfort i Estetyka w Jednym
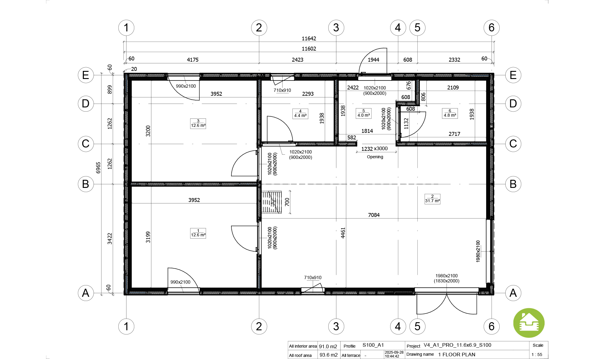
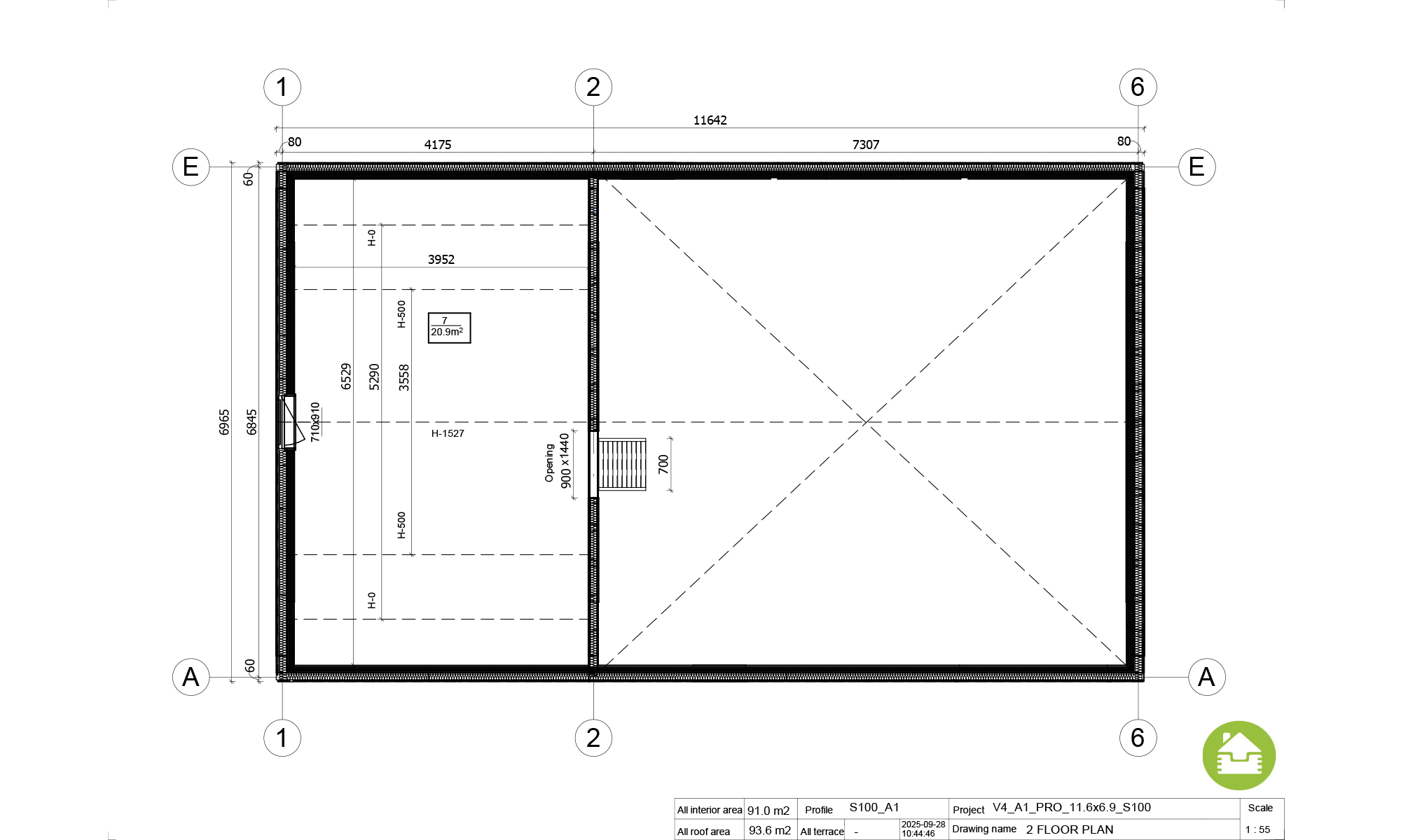
Model Jantar V4_A1 to nowoczesny drewniany dom o powierzchni użytkowej 91 m², który łączy w sobie praktyczność, komfort i elegancję. Idealny zarówno jako letniskowy azyl, jak i tańsza alternatywa dla mieszkania w bloku. Dzięki przemyślanemu projektowi i zastosowaniu najwyższej jakości materiałów, dom spełnia oczekiwania najbardziej wymagających użytkowników.
Już w standardzie konstrukcja Jantar V4_A1 zapewnia odpowiednie parametry cieplne, a wybór wariantu Premium Pro umożliwia spełnienie norm izolacyjnych budynków całorocznych WT2021, gwarantując komfort termiczny przez cały rok. Dodatkowo, dostępne są różne warianty izolacji dachu, ścian i podłóg, co pozwala dostosować dom do indywidualnych potrzeb.
Dom oferuje również możliwość wyboru między PVC a drewnianymi oknami, co pozwala na zachowanie równowagi między estetyką a funkcjonalnością. Malowana elewacja dostępna w różnych kolorach pozwala na pełną personalizację i dopasowanie do otoczenia, nadając domowi unikalny charakter.
Parterowy układ z antresolą to nie tylko dodatkowa przestrzeń, ale także nowoczesny i przestronny charakter wnętrza. Funkcjonalne rozmieszczenie pomieszczeń sprawia, że każdy metr kwadratowy został maksymalnie wykorzystany, zapewniając wygodę zarówno rodzinom, jak i indywidualnym użytkownikom.
Profesjonalny zespół zapewnia szybki montaż w ciągu 3–4 tygodni, dzięki czemu w krótkim czasie możesz cieszyć się swoim wymarzonym domem, w pełni wykończonym i gotowym do zamieszkania.
Jantar V4_A1 – Twój nowy dom, który harmonijnie łączy nowoczesny design, przytulność, elastyczność wykończenia i ekologiczne podejście do budownictwa.
Więcej modeli znajdziesz w kategorii Domki letniskowe modułowe - panelowe.
