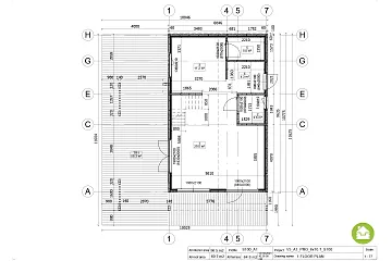
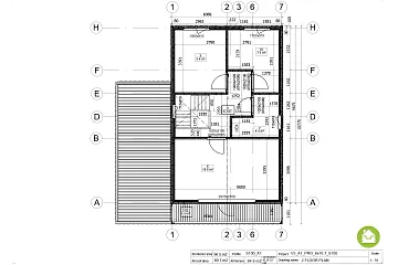
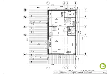
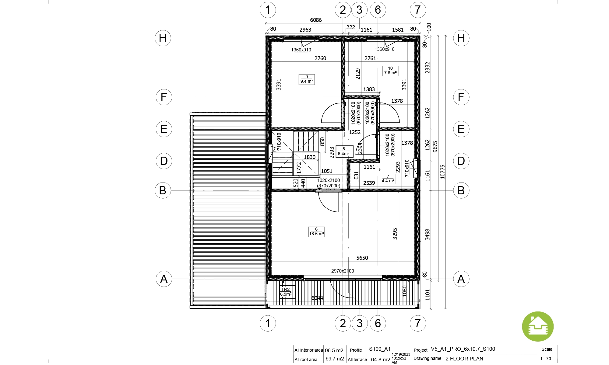
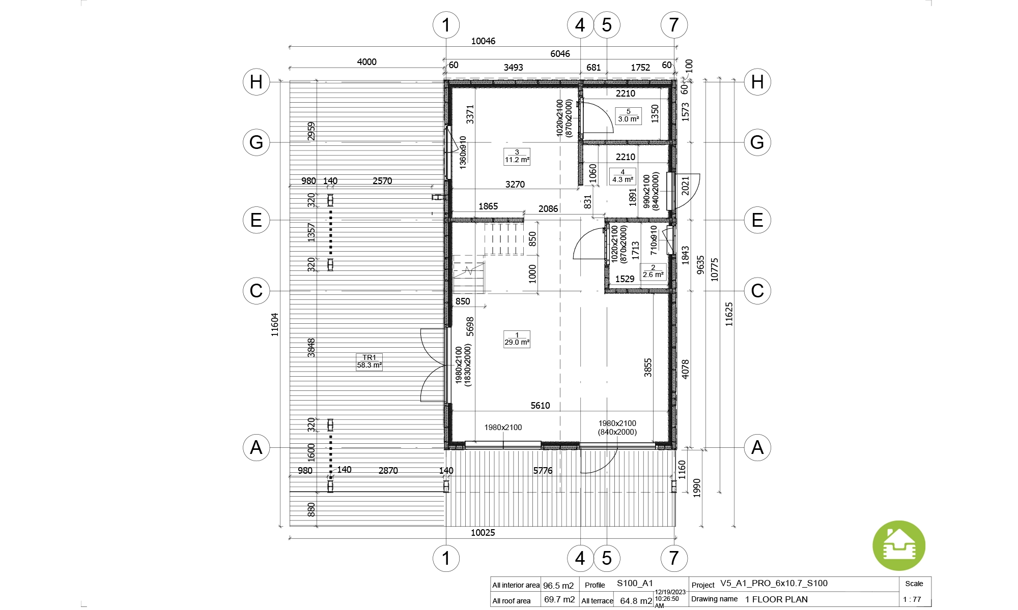
Model Rosko V5_A1 to nowoczesny dom całoroczny modułowy o powierzchni użytkowej ponad 96 m². Dzięki solidnej, ocieplonej konstrukcji idealnie sprawdzi się nie tylko jako dom letniskowy, ale również jako funkcjonalny dom do zamieszkania przez cały rok – wygodna i tańsza alternatywa dla mieszkania w bloku.
Dom powstaje z prefabrykowanych elementów, co zapewnia szybki montaż – z pełnym wykończeniem wnętrz nawet w 4–5 tygodni.
Dużym atutem jest możliwość pełnej personalizacji – dom może być modyfikowany zgodnie z indywidualnymi potrzebami klienta. Oferujemy projekty indywidualne, w których można zmieniać układ pomieszczeń, powierzchnię oraz wygląd wykończenia.
W opcjach dodatkowych można wybrać: rodzaj i kolor podłóg, kolor zewnętrznych desek elewacyjnych oraz poziom zaawansowania realizacji projektu – od stanu surowego po „pod klucz”.
Dom w standardzie jest bardzo dobrze ocieplony, a wersja Premium Pro przekracza normy dla domów szkieletowych całorocznych WT 2021. Przemyślany układ z parterem, piętrem, balkonem i pergolą zapewnia komfort codziennego życia.
Nowoczesna elewacja z trwałego gontu bitumicznego to stylowa alternatywa dla klasycznego tynku.
Zapewniamy profesjonalną konsultację, wysoką jakość domów modułowych oraz bezkonkurencyjną cenę bezpośrednio od producenta.
Więcej modeli znajdziesz w kategorii Domki letniskowe modułowe - panelowe.
