Dom letniskowy NYSA VSP5.1

CENA BRUTTO:
133740.00 zł

Szybka i bezpłatna dostawa

WYBIERZ ZESTAW:

Grubość ściany 44 mm

Zadzwoń i zamów +48 85 672 30 31

Opis

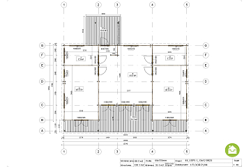
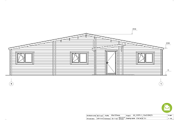
Bardzo przestrzenny, światły (całkowicie zaszklone drzwi), świetnie splanowany domek letniskowy 119 m² wpełni przystosowany dla potrzeb każdej rodziny. W tym ekologicznym domku są urządzone nawet pięc oddzielnych pomieszczeń (pokój dzienny, dwie sypialnie, biuro oraz duża łazienka). W sypialniach są urzadzone duże garderoby. Domek jest splanowany tak, że można wmieścić przedpokój oraz niemałą kuchnie. Domek letniskowy ma duży taras. Ten projekt może być stosowany jako kemping oraz ośrodek rekreacyjny. Domek wykonany z prostej konstrukcji, dlatego łatwo się go montuje. Więcej modeli znajdziesz w kategorii Domy letniskowe.

Najważniejsze cechy

Powierzchnia użytkowa

119 m2

Taras

35 m²

Liczba pokoi

3

Łazienki + toalety

2

Konstrukcja

Z balika

Przeszklenie

Dwuszybowe, szkło zespolone thermo

Tylko u nas zestaw PREMIUM jest standardem

P-1A
  • Hydroizolacja na fundament pod podwaliny
  • Podwaliny fundamentow płaskich
  • Zestaw deski podłogowej
  • Zestaw listwy przypodłogowej
  • Zestaw profilowanych desek scian, grubośc sprawdź według rysunków projektu
  • Zestaw deski dachowej
  • Zestaw elementów wykończeniowych z drewna
  • Pokrycie dachu papa bitumiczna w rolkach
  • Zestaw elementów montażowych
  • Materiały uszczelniające
  • Prog metalowy do drzwi wejściowych
  • Zestaw okien i drzwi z podwójną szybą, drzwi wewnętrzne całkowicie drewniane
  • Otwierane na zewnątrz okna, stronę otwarcia drzwi sprawdź według rysunków projektu
  • Podwojna uszczelka gumowa dla okien i drzwi oraz zestaw zamków i klamek
  • Zestaw desek do tarasu sprawdź według rysunków projektu

Już widziałem

Dom letniskowy NYSA VSP5.1
133740.00 zł

119 m2

x3

x2

35 m²

Bardzo przestrzenny, światły (całkowicie zaszklone drzwi), świetnie splanowany domek letniskowy 119 ..

WIĘCEJ
+48 856 723 031 Kontakt Jak wybrać dom szkieletowy? Oferta

Strona EKO ARCHITEKTURA wykorzystuje cztery główne rodzaje plików cookies.

Kontynuując przeglądanie, zgadzasz się na niezbędne pliki cookie. Możesz także wyrazić zgodę na użycie innych plików cookie. Szczegółowe informacje o plikach cookies i sposobie ich wykorzystywania w naszej Polityce Prywatności.

Dbamy o Twoją prywatność! Wykorzystujemy dane odwiedzających do personalizowanych reklam, przestrzegając wytycznych https://business.safety.google/privacy/